
A NEW FACILITY OF OPPORTUNITY

DEAR ALTER KNIGHTS,
We remain steadfast in our mission to offer and deliver educational excellence in a Christ centered environment as well as to continue to improve our academic offerings and campus facilities to meet the ever changing needs, abilities and talents of our students.
Since 2008, we have improved our campus by renovating the Chapel, the Science labs, adding turf fields and air conditioning, and, finally, changing the footprint of the campus by adding the Conservatory for the Arts building to house our incredible arts programs.
As this dream is unveiled, I am so excited to dream with you as we continue to position Archbishop Alter High School as a premiere educational option in the Dayton area for many years to come. The additions to the campus illustrated herein show an additional parking lot, and a Fieldhouse that will improve the experience for every student athlete by adding three additional courts and making an after school practice attainable so that our student athletes may be home for dinner with their families. This dream protects and nurtures our most valuable assets – our children and their families. I can think of no better investment in our future than in the quality of their high school experience. For that reason, our dream is called Unite the Knights because this Fieldhouse will do just that.
Thank you for allowing us to serve you, and for reminding us that faith, pride and spirit never go out of style. Thank you for the opportunity to partner with you to Unite the Knights. Please don’t hesitate to contact me for more information about this project.
With hope and gratitude,
Lourdes Lambert
Principal/CEO
lourdes.lambert@alterhs.org
937-434-4434

THE VISION
Rebuild a campus of community for ALL Knights! Our dream is to provide a safe space, centered around Christ, for our students to thrive in. The fieldhouse will improve the experience for all athletes, coaches, future Knights and alumni. Unite the Knights is an opportunity for a strong community to connect, compete and celebrate the WINS well into the future!
CONNECTION
Phase I will have an immediate, profound impact on our student athletes to provide on-site and available practice and training facilities. A new fieldhouse will allow athletes and coaches to practice right after school, and necessary strength training will be done on campus. This all translates to families enjoying improved home life balance and a return to the dinner table. Additionally, programs like intramurals and alumni leagues will become new opportunities for more community members to connect.
UNITE THE KNIGHTS – connecting our students, athletes, families, alumni and fans!Â
COMMUNITY
Whether you’re a past, current, or future Knight, our vision is to expand our facilities to provide opportunities for all Knights – connecting our community on campus! Additionally, we are excited to host other communities to showcase a Christ-centered environment and improve the student athlete and fan experience.
THE NEW FACILITY CAN PROUDLY HOST:
CURRENT KNIGHTS
ALL STUDENTS
Safety & Security
Mental Health & Wellness
Extra-curricular & Co-curricular Activities
ATHLETES
Baseball
Basketball
Bowling
Cheer
Cross Country
Football
Golf
Gymnastics
Hockey
Intermurals
Lacrosse
Soccer
Softball
Swimming
Tennis
Track & Field
Volleyball
Wrestling
FUTURE KNIGHTS
Youth Sports Teams
Youth Summer Camps
Youth Clubs
CYO
ALUMNI
Reunion Events
Alumni Leagues
CAMPUS
The opportunities a reimagined campus provides will empower our students to reach their fullest academic and extra-curricular potential. We’re excited for these programs, with these available new resources, to match the caliber of our academic and athletic legacy at Archbishop Alter High School!
PHASE 1 A: FULLY FUNDED!
Improved Traffic Flow: New north parking lot adding 160 spacesÂ

PHASE 1 B: $6.5 M estimateÂ
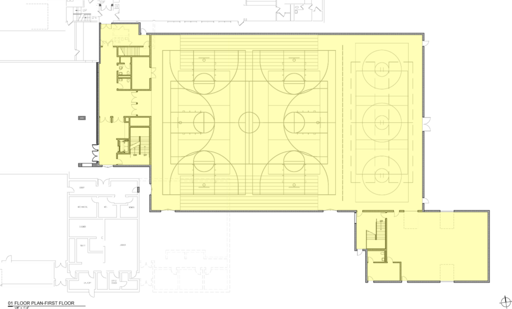
New Multi-purpose Field House & Utility Storage: 16,000 sq. ft. build. Amenities include: 3 courts, and additional space for wrestling mats, golf training, batting practices, etc.Â

PHASE 1 C: $300,000 estimate
Relocate Weight & Training Room

PHASE 1 D: $250,000 estimate
New Administrative Offices

PHASE 2:Â
- New Boys and Girls Lockers Rooms and team offices<
- Renovate existing Locker Rooms for Visitors
- New Baseball Field
- New Entry: 6,500 sq. ft. two story entry and student commons
- New Physical Performance and Weight Training: 5,600 sq. ft.
PHASE 3:
- New 3,500 capacity grandstand including:
Press box
Stadium locker rooms
Sports medicine
Concessions
Public restrooms
Classrooms
- New formal stadium entrance with storage and ticket booth
- Demolish existing press box and elongate for equipment storage
CAMPUS
The opportunities a reimagined campus provides will empower our students to reach their fullest academic and extracurricular potential. We’re excited for these programs, with these available new resources, to match the caliber of our academic and athletic legacy at Alter Archbishop High School!

PHASE 1 A:
FULLY FUNDED!
Improved Traffic Flow: New north parking lot adding 160 spaces
PHASE 1 B:
$6.5 M estimate
New Multi-purpose Field House & Utility Storage: 16,000 sq. ft. build. Amenities include: 3 courts, and additional space for wrestling mats, golf training, batting practices, etc.
PHASE 1 C:
$300,000 estimate
Relocate Weight & Training Room
PHASE 1 D:
$250,000 estimate
New Administrative Offices
PHASE 2:
- New Boys and Girls Lockers Rooms and team offices
- Renovate existing Locker Rooms for Visitors
- New Baseball Field
- New Entry: 6,500 sq. ft. two story entry and student commons
- New Physical Performance and Weight Training: 5,600 sq. ft.
PHASE 3:
- New 3,500 capacity grandstand including: Press box
- Stadium Locker rooms
- Sports medicine
- New formal athletic field entry with storage and ticket booth
- Demolish existing press box and elongate for equipment storage

WAYS TO SUPPORT
WAYS TO SUPPORT
Become an Ambassador
Educate and promote our effort to Unite the Knights and reach full funding for Phase I – $8 million. Connect us to those who you believe have both affinity and capacity to help Alter.
Lourdes Lambert
Principal/CEO
lourdes.lambert@alterhs.org
937-434-4434
Robin Blank
Director of Advancement
robin.blank@alterhs.org
937-428-5330
Donate
Participate directly with an investment that is meaningful to you.
Gift Options:
- A12 Society, our automated monthly gift program charged monthly to your designated credit card
- Gifts of appreciated securities
- Distributions from an IRA such as an annual required minimum distribution or monthly distribution
- Qualified Charitable Distributions (QCD)

